三层别墅全套设计图纸- 5.0共6页
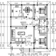
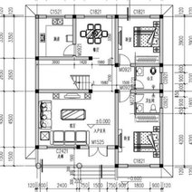
- 三层别墅全套图纸设计众多方案之中总有一款适合您的,喜欢就赶紧订购吧编号名称高端实用坡屋顶带露台别墅设计功能一层老人房、卫生间、杂物间、客厅、厨房、餐厅;二层会客厅、卫生间、客厅、主人房、阳台;三层卧室、个露台、主人房、客房。主要图纸目录效果
三层别墅设计图纸带效果图- 5.0共1页
- 三层别墅设计图纸带效果图最新三层别墅设计图纸带效果图,高档私人别墅设计方案软件介绍[仅展示部分截图,详细介绍及整套图纸请下载附件查看]图纸介绍:本户型是三层独栋别墅,欧式风格,外观高端大气,全套别墅设
三层别墅设计图纸(最新版)- 5.0共2页
- .鲁班设计图纸网:最新提供的三层别墅房屋图纸大全因为有限制不能展示太多,只能展示有限的套数,如果想看到更多请搜《鲁班设计图纸网》《鲁班设计图纸大全》自建别墅的设计方案,每套都有外观图、效果图
三层别墅设计全套图纸- 5.0共4页
- 简介:此文档是关于三层别墅设计全套图纸 的doc文档,编号为84163963,其中主题是关于经济管理、行业分析的内容展示: :
360文库
三层别墅设计图纸及效果图 三层别墅图片大全 农村三层别墅平面户型图 ...
✅三层别墅设计图纸及效果图大全提供2026年(2025)新款农村三层小别墅设计图纸和三层房屋设计图,带外观效果图,分为独栋别墅、双拼别墅、联排别墅等多种样式,包含别墅平面图、别墅户型图、...
图纸之家
三层别墅设计图图片 三层别墅设计图素材 三层别墅设计图设计模板
千图网为您找到474张三层别墅设计图素材,千图网同时还提供三层别墅设计图相关图片、素材、模板,涵盖 PSD/PNG/JPG,多场景使用适配。千图网长期沉淀海量素材,持续扩充创意内容,为视觉设计...
千图网
三层别墅设计图500套 别墅图纸库 自建房设计大全
找三层别墅设计图500套?图纸之家提供数千套新农村/乡村三层别墅设计图500套方案,(全套施工图+外观效果图片+户型图),包括一层、二层、三层、四层、五层等多种层高的三层别墅设计图500套...
图纸之家
没有更多结果了~
- 意见反馈
- 页面反馈